3 pièces
•
2 chambres
•
2 balcons
•
3 pièces • 2 chambres • 2 balcons •
Megève, Rochebrune
Au cœur du très recherché quartier de Rochebrune, cet appartement allie confort, lumière et calme dans une copropriété parfaitement entretenue. Situé au premier étage sur 2, il offre de beaux volumes très bien agencés et une atmosphère chaleureuse, idéale aussi bien pour un pied-à-terre à la montagne que pour un projet de location saisonnière à Megève.
Description
-

Chambre avec balcon
D’une surface de 11,33 m² au sol, elle offre un espace confortable et bien proportionné.
Elle bénéficie d’un accès direct au balcon de 3,47m2, prolongeant agréablement la pièce et apportant une belle luminosité naturelle.
Un placard intégré optimise les rangements et participe à la fonctionnalité de l’espace. -

Cuisine semi ouverte sur salon
La cuisine, aujourd’hui indépendante, présente une configuration simple et fonctionnelle.
Elle bénéficie d’une fenêtre apportant de la lumière naturelle, et d’un volume permettant une relecture complète de l’espace.
Des travaux de rafraîchissement sont à prévoir, offrant l’opportunité de repenser la cuisine selon ses usages et ses envies, qu’elle soit ouverte sur le séjour ou modernisée dans un esprit plus contemporain. -
Pièce de vie donnant sur un balcon de 7,4m2
La pièce de vie, de 17,56m2, s’ouvre sur un balcon et profite d’une belle luminosité.
Un rafraîchissement permettra de révéler tout le potentiel de cet espace, aujourd’hui structuré de manière simple, et d’en faire un lieu de vie convivial et harmonieux. -

Chambre avec placards
Cette chambre de 12,13m2 au sol offre un espace calme et bien proportionné, propice au repos.
Elle bénéficie d’une ouverture apportant de la lumière naturelle, et d’un volume permettant une mise à jour décorative simple pour en faire une chambre confortable et chaleureuse.
Un rafraîchissement permettra d’harmoniser l’ensemble et de révéler tout le potentiel de cet espace. -

Salle de bains avec fenêtre
La salle de bains de 4,21m2, équipée d’une fenêtre, bénéficie d’une lumière naturelle appréciable et d’une aération efficace.
Elle dispose actuellement d’une baignoire et d’un meuble vasque, dans une configuration fonctionnelle.
Un rafraîchissement permettra de moderniser l’ensemble et d’en faire une pièce d’eau plus contemporaine, en conservant le confort de la lumière naturelle. -

Copropriété très bien entretenue
L’appartement s’inscrit au sein d’une copropriété à taille humaine, composée de quatre bâtiments.
L’environnement est calme, agréable et fidèle à l’esprit montagnard du quartier, avec des façades boisées et des espaces extérieurs bien tenus.
Le bien est vendu avec une place de stationnement extérieur, une buanderie privative, ainsi qu’un casier à skis. -

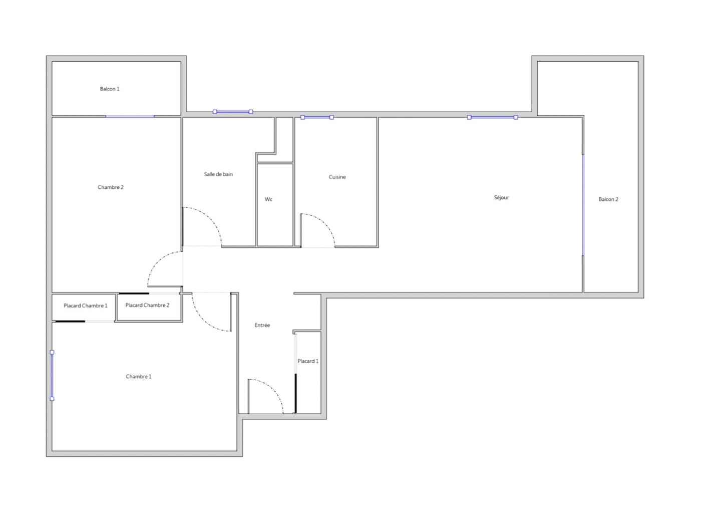
Plan de l'appartement
La configuration actuelle offre une base saine et lisible, idéale pour un projet de rafraîchissement permettant de moderniser les espaces tout en conservant une distribution efficace et agréable au quotidien.
Caractéristiques
Prix :
573 000 euros - honoraires à la charge du vendeur
Période de construction :
1978 - 1982
Type de bien : Appartement T3
Surface Loi Carrez : 60,10 m²
Surface au sol : 75,52 m²
Copropriété : oui
Nombre de lots : 224 lots répartis en 4 bâtiments, dont 51 lots à usage d’habitation
Procédure en cours : non
Montant moyen mensuel des charges : 210 euros
Classe énergie (DPE) : F
Classe climat (GES) : C
Estimation des dépenses annuelles d’énergie :
(usage standard – prix de l’énergie indexés sur l’année 2021, 2022 et 2023) : Entre 880 € et 1 250 €
Contactez-nous.
Et si ce lieu devenait le vôtre ?
Pour en savoir plus ou organiser une visite, nous vous invitons à nous contacter.

